Mont Kiara, Kuala Lumpur, Malaysia
/*! elementor – v3.21.0 – 08-05-2024 */
.elementor-widget-image{text-align:center}.elementor-widget-image a{display:inline-block}.elementor-widget-image a img[src$=”.svg”]{width:48px}.elementor-widget-image img{vertical-align:middle;display:inline-block}
Buy this Set ⬇️
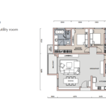
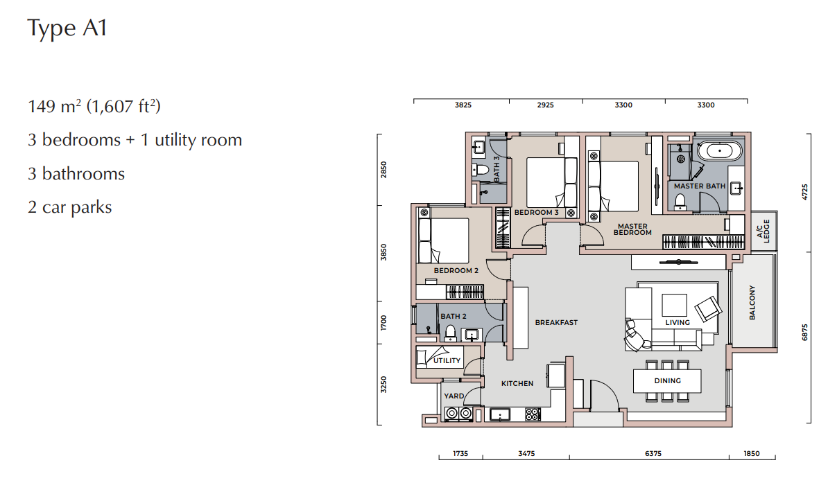
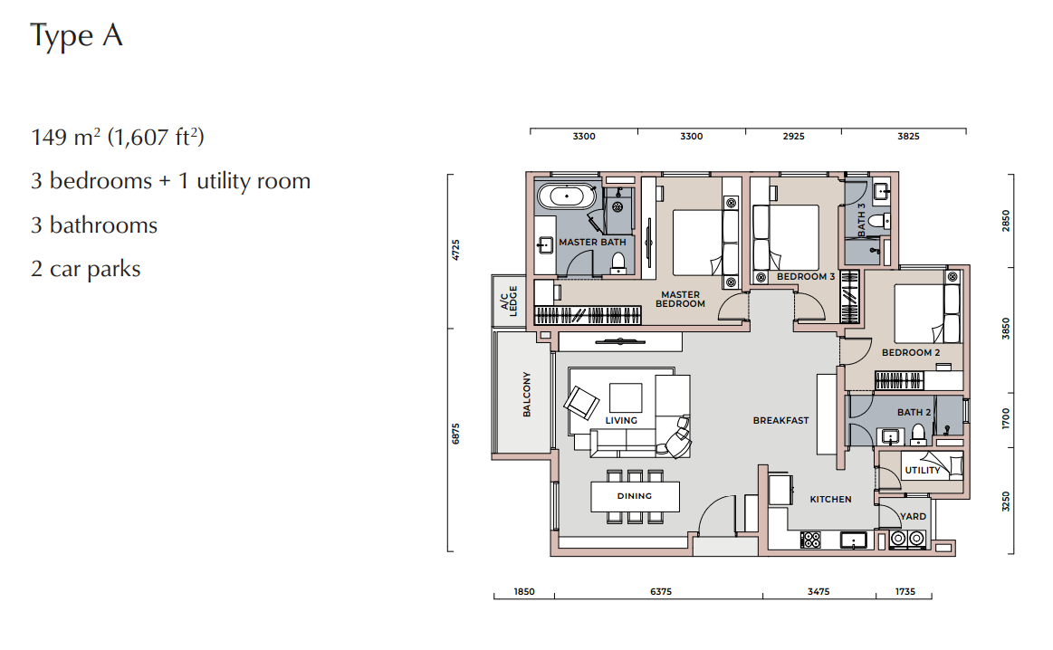
Type A/A1 Bundle Link
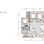
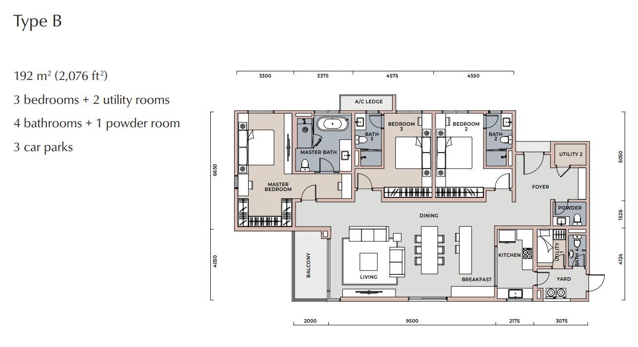
Type B/B1 Bundle Link
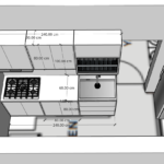
Type C Bundle Link
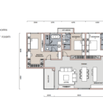
Type D Bundle Link









































